Звоните! Мы Вас с радостью проконсультируем!
Часы работы с 10.00 - 20.00 Если не дозвонились, напишите нам в мессенджер и мы Вам перезвоним! Закажите звонок или напишите нам! | ||
Создаем одноэтажные модульные дома. Комфортные, теплые и энергоэффективные дома для круглогодичного проживания. Дома для дачи. За 60 дней от договора до въезда. Цена от 2 480 000 руб. Модульные бани для душевного парения от 1 410 000 руб. Санкт-Петербург, Лен.обл., Россия! | ||
Поиск по каталогу
Отзывы
«Прошло почти два года с момента сдачи дома и есть что сказать! Честно говоря, получилось лучше, чем задумывалось этакий смарт-дом, очень энергоэффективный и симпатичный. Постоянные консультации во вре... [читать далее]мя постройки дома, приглашали на производство показать промежуточные результаты. Соотношение цены и качества вне конкуренции, материалы отличного качества, а уж проводка и электрический щит выполнено «моё почтение»»
«Проект дома формировался таким образом, чтобы было комфортно пользоваться им также и зимой. Отсюда появилась изолированная прихожая, которая не даст попадать холодному воздуху в жилые помещения.
В пр... [читать далее]ихожей и в санузле на полу кафель, в остальных помещениях - ламинат.
Дизайн стен и дверей продиктовал для нас дальнейший подбор оттенков мебели))
Начали пользоваться домом с начала июня этого года, довольно холодного и дождливого. Приезжая из нашей квартиры, которая находится в кирпичном доме, мы ощущали мощный контраст, насколько в доме тепло, сухо, уютно по сравнению с квартирой, даже при условии не использования отопления! Тёплые полы - это наша новая любовь, нагреваются моментально, а если пол кафельный, то это отдельный кайф - ходить по тёплому камню....
Наблюдали все этапы строительства, древесина качественно обрабатывалась составами от гниения и плесени. Сама отделка в доме сделана прямо очень хорошо. Мы с мужем достаточно придирчивые, скажем так педантичные. Но в данном случае практически не было каких-либо замечаний. Был момент, что окна и двери нам показались недостаточно отрегулированы, мастер оперативно приехал и всё поправил.
Древесина полностью гладкая на террасе, можно ходить босиком.
От себя дадим рекомендацию, что не стоит делать полностью весь фасад стеклянным, так как теряется возможность внутри расставить мебель. Один стеклянный модуль - это более чем достаточно.
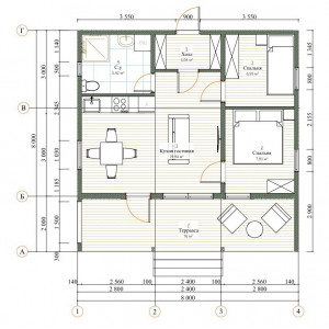
Также добавлю, что на плане площадь дома казалась гораздо меньше. Даже когда пытались графически расставить предметы, то казалось, что ничего не помещается. А в реальности оказалось, что например, санузел очень свободный, просторный, прихожая тоже большая, помещается не только прихожий комплект мебели, но и можно поставить еще кладовочный шкаф для хранения.
В общем, план прикрепила, он просто огненный, всем рекомендую)))»
В пр... [читать далее]ихожей и в санузле на полу кафель, в остальных помещениях - ламинат.
Дизайн стен и дверей продиктовал для нас дальнейший подбор оттенков мебели))
Начали пользоваться домом с начала июня этого года, довольно холодного и дождливого. Приезжая из нашей квартиры, которая находится в кирпичном доме, мы ощущали мощный контраст, насколько в доме тепло, сухо, уютно по сравнению с квартирой, даже при условии не использования отопления! Тёплые полы - это наша новая любовь, нагреваются моментально, а если пол кафельный, то это отдельный кайф - ходить по тёплому камню....
Наблюдали все этапы строительства, древесина качественно обрабатывалась составами от гниения и плесени. Сама отделка в доме сделана прямо очень хорошо. Мы с мужем достаточно придирчивые, скажем так педантичные. Но в данном случае практически не было каких-либо замечаний. Был момент, что окна и двери нам показались недостаточно отрегулированы, мастер оперативно приехал и всё поправил.
Древесина полностью гладкая на террасе, можно ходить босиком.
От себя дадим рекомендацию, что не стоит делать полностью весь фасад стеклянным, так как теряется возможность внутри расставить мебель. Один стеклянный модуль - это более чем достаточно.
Также добавлю, что на плане площадь дома казалась гораздо меньше. Даже когда пытались графически расставить предметы, то казалось, что ничего не помещается. А в реальности оказалось, что например, санузел очень свободный, просторный, прихожая тоже большая, помещается не только прихожий комплект мебели, но и можно поставить еще кладовочный шкаф для хранения.
В общем, план прикрепила, он просто огненный, всем рекомендую)))»
«Хотим сказать спасибо за наш дачный дом компании IP-modul.
С самого первого дня нас подробно консультировали по всем вопросам и этапам строительства. Получилось очень приятное и открытое общение без ... [читать далее]навязывания услуг.
Дом был установлен в срок. При приемке дома нареканий практически не возникло, а те мелочи, которые не устроили, были исправлены в кратчайшие сроки.
Живем тут с марта. Ни в холодную, ни в жаркую погоду у нас нет никаких проблем. Очень довольны и благодарны за новый качественный дом.»
С самого первого дня нас подробно консультировали по всем вопросам и этапам строительства. Получилось очень приятное и открытое общение без ... [читать далее]навязывания услуг.
Дом был установлен в срок. При приемке дома нареканий практически не возникло, а те мелочи, которые не устроили, были исправлены в кратчайшие сроки.
Живем тут с марта. Ни в холодную, ни в жаркую погоду у нас нет никаких проблем. Очень довольны и благодарны за новый качественный дом.»
«Мы хотим выразить огромную благодарность, потому что мы скоро сможем въехать в наш новый дом. Мы долго искали компанию для строительства нашего дома. На первой встрече мы были впечатлены профессионали... [читать далее]змом и качеством работы этой компании. Мы подписали договор и не пожалели об этом решении. Все работы были выполнены безупречно и аккуратно. Еще раз огромное спасибо, что выбрали именно эту компанию для строительства нашего дома. Мы очень довольны результатом и рады, что обратились именно к Вам!»
Только что заказали
Готовый дом с террасой и инженерными коммуникациями под ключ.
Завозите мебель и живите.
Возможны разные планировки.
Габариты дома ВхШхД:
3,3 * 7,5 * 8 М
Жилая площадь 40 м2
Общая площадь (включая террасу) 60 м2
Высота потолков – 2,7 м
Завозите мебель и живите.
Возможны разные планировки.
Габариты дома ВхШхД:
3,3 * 7,5 * 8 М
Жилая площадь 40 м2
Общая площадь (включая террасу) 60 м2
Высота потолков – 2,7 м
- Главная
- Модульные дома
- Готовый модульный дом с террасой DIP 64 м2
Готовый модульный дом с террасой DIP 64 м2
Готовый дом с террасой под завоз мебели.
Габариты дома ВхШхД:
3,7 * 8 * 8 М
Жилая площадь 43 м2
Общая площадь (включая террасу) 64 м2
Высота потолков – 3,1 м
- на картинках представлены реальные построенные дома. Варианты планировок указаны для примера и могут отличаться в зависимости от размера и проекта дома. Конструктив дома указан на проекте под заказ и отличается от формы представленного дома.
Цена: 3920000 руб.
.png)
ВХОДИТ В СТОИМОСТЬ
- Выезд специалиста на Ваш участок
- Свайно-винтовой фундамент до 2,5м
- Готовый дом с чистовой отделкой
- Монтаж дома на Вашем участке
Материал модульного дома под ключ (из чего состоит дом):
Пол:
- Ламинат 33 класс
- Обрешетка
- Ветрозащитная мембрана
- Утепление 200мм
- Каркас из доски камерной сушки 50*200мм
- Пароизоляция
- Обрешетка
- ОСБ 22мм
- Антисептирование
Стены:
- Имитация бруса 20мм крашеная до монтажа
- Обрешетка
- Пароизоляция проклеенная скотчем для изоляции пара
- Утепление 150мм
- Каркас из доски камерной сушки 50*150мм
- Ветрозащитная мембрана
- Контробрешетка
- Обрешетка
- Профлист с20 цвет 7024 либо фасадная доска
- Антисептирование
Крыша:
- Профлист с20 цвет 7024
- Имитация бруса 20мм крашеная до монтажа
- Обрешетка
- Контробрешетка
- Пароизоляция проклеенная скотчем для изоляции пара
- Утепление 200мм
- Каркас из доски камерной сушки 50*200мм
- Подкровельная мембрана
- Контробрешетка 50мм
- Обрешетка
- Антисептирование
Внутренняя отделка
- Черновые полы – осб 22мм
- Напольное покрытие — ламинат 33 класс
- Стены и потолок — имитация бруса карельского профиля (хвойные породы, сорт АБ, толщина 21 мм, окраска до монтажа)
- Санузел: пол – кварцвинил, стены и потолок – имитация бруса, вентилятор с датчиком влажности
Двери и Окна:
- Межкомнатные двери – влагостойкие, материал окраски – эмаль, цвет – белый
- Входная дверь — двухкамерный стеклопакет во всю высоту, энергоэффективный(с аргоном и i-напылением), фурнитура Roto, размер 900*2000мм
- Окно —металлопластиковая пятикамерная рама с дополнительным армированием, стеклопакеты двухкамерные с аргоном и пластиковой рамкой, энергоэффективные (с аргоном и i-напылением),
- Фурнитура Rotо,
- Витражное остекление — стеклопакет двухкамерный, внутренняя камера с аргоном, внутреннее стекло с i-напылением, полимерная дистанционная рамка
Выбор цвета
- Вы можете выбрать любой цвет для своего дома по системе RAL.
Инженерия:
- Распределительный электрощиток с автоматами IEK, кабель ВВГнг-ls (прокладка кабеля в самозатухающей гофрированной пвх трубе)
- Розетки Hegel Master – 20 шт накладные, точечные светодиодные потолочные светильники во всех помещениях
- Уличная влагостойкая розетка
- Канализация — труба Ostendorf 50 и 110 мм
- Водопровод — армированный полипропилен Д20, комбинированный с гибкой подводкой для подключения душевой кабинки, раковины, унитаза и бойлера и мойки
- Греющий кабель для обогрева ввода воды длиной 4 метра внутрь трубы
Готовая крытая терасса
* терасная доска
* доска камерной сушки 50*200
Лестницы на терассу

ДОПОЛНИТЕЛЬНЫЕ ОПЦИИ
* Система умного дома
* Любой дом с плоской крышей
* Растущий дом для будущего расширения
* Теплый пол
* Индивидуальный проект

Доставка дома рассчитывается индивидуально в зависимости от расположения земельного участка на котором, происходит монтаж готового модульного дома и оплачивается отдельно.
Наши преимущества:
ГИБКОСТЬ
* Мы не привязаны к представленным проектам и можем сделать Вам дом исходя из Ваших пожеланий.
СКОРОСТЬ:
* От договора до въезда ВСЕГО 60 ДНЕЙ.
* Возможны разные планировки. Мы не ограничены только 3 вариантами.
* Дом собирается в крытом ангаре, что позволяет ускорить процесс сборки.
* Отсутствие задержек из-за погоды.
* Параллельное изготовление компонентов дома, что исключает простои из-за погоды или ожидания материалов.
* Минимум работ на участке — на участке монтируется только фундамент (чаще свайный или плитный), затем модули привозятся и устанавливаются краном. Все соединения модулей (электрика, водопровод, вентиляция) выполняются в течение нескольких дней.
* Наш мастер всегда на производстве и контролирует процесс.
* Строим дома из сухой строганой доски.
КАЧЕСТВО
* Строгий контроль качества на всех этапах производства. В закрытом помещении исключается воздействие неблагоприятных погодных условий, что позволяет сохранять идеальные условия для работы с материалами и соблюдение технологий.
* Персонализация модулей — даже несмотря на массовое производство, каждый модуль можно адаптировать под заказчика: менять размеры и планировку, выбирать материалы отделки, добавлять опции (например, систему «умный дом», панорамные окна).
* Мы уверены в своем качестве и даем гарантию 10 лет.
СТОИМОСТЬ
* Экономия денег по сравнению с традиционным строительством, где расходы могут резко увеличиваться из-за непредвиденных обстоятельств: простоев из-за плохой погоды, необходимости дополнительно оплачивать транспортировку материалов, аренду техники.
* Возможность точно спрогнозировать стоимость — она не меняется в процессе работы.
* Снижение себестоимости за счёт оптимизации процессов — например, использование конвейерного принципа, где дом создаётся поэтапно, каждый этап выполняется специализированной бригадой.
ЭКОЛОГИЧНОСТЬ
* Минимизация отходов — все излишки материалов могут быть переработаны непосредственно на месте, что уменьшает объём мусора на строительной площадке.
* Использование экологически чистых материалов — например, силового каркаса из массива дерева, внутренней и внешней отделки из натуральной древесины, обработанной огне-биозащитой.
* Экологичное утепление — теплоизоляция выполняется с использованием материалов, имеющих экологические сертификаты, что снижает энергопотребление и нагрузку на окружающую среду.
* Возможность оборудовать дом системами возобновляемой энергии — например, солнечными батареями или системами сбора дождевой воды.
Построенные уютные модульные дома для наших клиентов
Цена: 3920000 руб.

















