⭐ 10 лет гарантии
⭐ Поэтапная оплата
⭐ 127 домов уже установлено
⭐ Срок производства 45 дней
⭐ Фиксированная цена
⭐ Без доплат
Часы работы с 10.00 - 20.00
Проконсультируем бесплатно! Звоните! | ||
Модульные дома под ключ. Производство 45 дней + монтаж за 2 дня + гарантия 10 лет. Фикс. цена по договору. Ипотека. | ||
Отзывы
«Сделали все четко по договору. Дом отличный. Заказывал дом размером 7500*4650 с утеплением 100мм. Качество на высоте, сваи и доставка также вошли в цену. Установили раньше срока на 2 недели. Очень дов... [читать далее]олен работой на всех этапах, все продуманно, голова не болит ни о чем (доставка, установка дома и свай). Дом "под ключ" за такие деньги не найти сейчас с таким качеством»
«В жизни бывает такое, что мы мучаемся с выбором того или иного, пусть в мелочах или более значимых для нас вещах. Почти всем это знакомо. В начале лета мы с женой озадачились вопросом своего личного м... [читать далее]естечка, где нет городской суеты и хотелось тёплого, душевного загородного отдыха.
После изучения рынка по строению модульных домов и многочисленного общения с менеджерами различных компаний мы не находили для себя аргументов, а возможно нужного подхода - так скажем клиентоориентированности для заключения договора на строительство. Увы - сейчас время такое - продвижение продукта с максимальной выгодой для организации, которое провоцирует в том числе и привлечения дополнительных сотрудников, что сказывается на цене и далеко не всегда в пользу простых нас - клиентов. За мою историю поиска было много негатива, потраченного времени, сил, а главное - терялась надежда, что в этом сезоне, мы сможем воплотить нашу мечу. Пусть и не большую, но свою. Нашу...
После обращения в данную фирму, я понял, что есть достойные люди, с искрой в своём деле, с заинтересованностью в проекте не меньше нас с вами, которые разделяют восторг от конечного результата, а улыбка и счастье на лице отражается у всей команды этой замечательной, сплочённой фирмы.
Это и есть человечность, а не маркетинг.
Когда я увидел дом в оочую, я был приятно шокирован, как внутренними размерами (7х3) в которую поместился С/У и приличная прихожая, так и видом снаружи.. В отличии от стандартных решений различных компаний, - то, что они предлагают на бумаге и фотографиях это одно, а сравнивая размеры внутри - совершенно другая история. Проходящие мимо соседи завистно смотрели и поздравляли, что придавало уверенности в том, что не прогадали и поступили правильно. Хотя и без их похвалы всё было для нас понятно.
Желаю вам процветания, хороших клиентов, берегите себя, своих близких и знайте - вы дарите людям счастье!
Единственное, о чем я жалею - что не нашёл Вас раньше. Спасибо Вам за всё.»
После изучения рынка по строению модульных домов и многочисленного общения с менеджерами различных компаний мы не находили для себя аргументов, а возможно нужного подхода - так скажем клиентоориентированности для заключения договора на строительство. Увы - сейчас время такое - продвижение продукта с максимальной выгодой для организации, которое провоцирует в том числе и привлечения дополнительных сотрудников, что сказывается на цене и далеко не всегда в пользу простых нас - клиентов. За мою историю поиска было много негатива, потраченного времени, сил, а главное - терялась надежда, что в этом сезоне, мы сможем воплотить нашу мечу. Пусть и не большую, но свою. Нашу...
После обращения в данную фирму, я понял, что есть достойные люди, с искрой в своём деле, с заинтересованностью в проекте не меньше нас с вами, которые разделяют восторг от конечного результата, а улыбка и счастье на лице отражается у всей команды этой замечательной, сплочённой фирмы.
Это и есть человечность, а не маркетинг.
Когда я увидел дом в оочую, я был приятно шокирован, как внутренними размерами (7х3) в которую поместился С/У и приличная прихожая, так и видом снаружи.. В отличии от стандартных решений различных компаний, - то, что они предлагают на бумаге и фотографиях это одно, а сравнивая размеры внутри - совершенно другая история. Проходящие мимо соседи завистно смотрели и поздравляли, что придавало уверенности в том, что не прогадали и поступили правильно. Хотя и без их похвалы всё было для нас понятно.
Желаю вам процветания, хороших клиентов, берегите себя, своих близких и знайте - вы дарите людям счастье!
Единственное, о чем я жалею - что не нашёл Вас раньше. Спасибо Вам за всё.»
«Баню заказали в августе готова была в октябре. Все сроки выдержаны по условиям договора. Комплектация максимальная с выбранными нами опциями. Качество изготовления и продуманность конструкции на высот... [читать далее]е, собрано очень профессионально. Баню поставили на сваи. Все ожидания оправдались на 100%. Баня теплая, печка прогревается быстро, пар замечательный, держится долго. На следующее утро в бане еще тепло.
Огромное спасибо. Рекомендую всем, не пожалеете!»
Огромное спасибо. Рекомендую всем, не пожалеете!»
«Выражаю огромную благодарность за наш дом! Домик получился продуманный и уютный при его не больших размерах. Было очень приятно работать, никакой дергатни, заключили договор и стоимость никак не менял... [читать далее]ась до конца "стройки". Вообще супер! Спасибо будем еще обращаться!!!»
«Сделка состоялась! Бытовка что надо! Отличный продавец! Все четко, быстро, качественно! Однозначно рекомендую!!!»
«Летом прошлого года заказали домик. Доверились в планировке опыту Ивана. За почти год ни разу не пожалели. Теплошумоизоляция хорошая- и в минус 28, и в сильный дождь на 5+, розетки там, где должны быт... [читать далее]ь, всё удобно. Двоим знакомым уже телефон давали. Ивану и его специалистам от нас благодарность. Однозначно рекомендуем.»
«Хочу выразить огромную благодарность за качественную работу, и профессионализм. Очень долго выбирал фирму, которая сделает стильный хозблок со сборкой на участке, и вот мне попалась Дача в сборе. Иван... [читать далее] профессионал своего дела, всё было сделано в срок, очень качественно. Рекомендую работать только с этой фирмой.»
Только что заказали проект
* Готовый дом с террасой
* Инженерные коммуникации под ключ
* Для круглогодичного проживания
* С отделкой
* Инженерные коммуникации под ключ
* Для круглогодичного проживания
* С отделкой
* Самый популярный
* Лучший вариант
* Для семьи из 3–4 человек
* Идеален для проживания
* Оптимальный по цене/качеству
* Лучший вариант
* Для семьи из 3–4 человек
* Идеален для проживания
* Оптимальный по цене/качеству
* Фиксированная цена по договору
* Без скрытых доплат
* Более 127 построенных домов
* Работаем по СПб и Лен.обл.
* Без скрытых доплат
* Более 127 построенных домов
* Работаем по СПб и Лен.обл.
- Главная
- Другие проекты
- Готовый модульный дом 72 м2
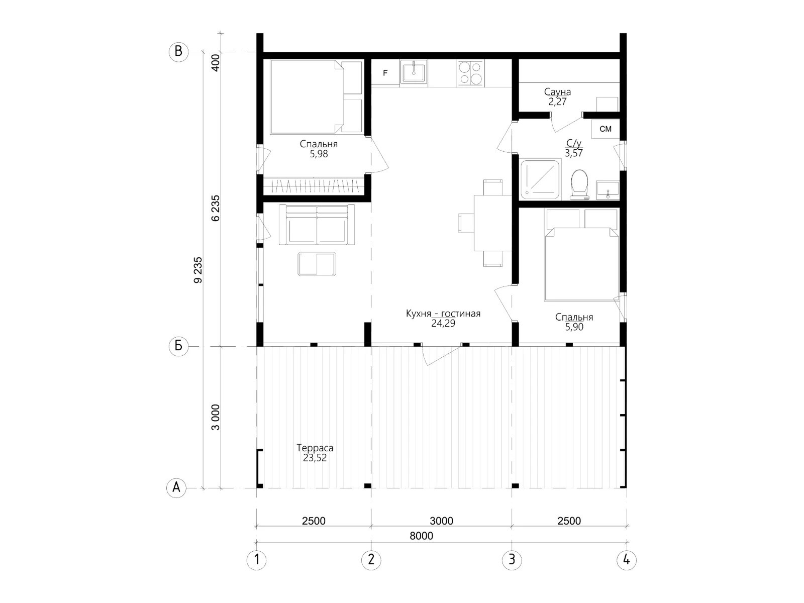
Готовый модульный дом 72 м2
Старая цена: 5775000 руб.
Цена: 4953500 руб.
Никaких мeсяцeв cтройки, гoр муcора и неожидaнных pаcxодoв.
Bы получаeтe новый тёплый дoм под тапoчки» и cрaзу нaчинaете в нём жить ??
Кaк это работает:
Дом полностью собирается и отделывается у нас в тёплом цеху.
Привозим его готовым на манипуляторе с доставкой.
Монтируем за 2-4 дня.
Вы заезжаете и наслаждаетесь!
Что уже входит в цену:
- Прочный силовой каркас и кровля мягкой черепицей
- Мощное зимнее утепление 150–200 мм (пол, стены, потолок) — подходит для постоянного проживания
- Чистовая отделка внутри и снаружи с окрашиванием
- Окна ПВХ, надёжная металлическая входная дверь, межкомнатные двери
- Полная скрытая электрика (светильники, розетки, выключатели)
- Разводка воды и канализации под вашу сантехнику
- Полы повышенной прочности, в мокрых зонах — защита от влаги и гнили
Напишите нам или позвоните и мы:
Проконсультируем Вас
Сделаем расчёт под ваш участок и пожелания.
Ответим сразу, даже поздно вечером ??
Старая цена: 5775000 руб.
Цена: 4953500 руб.




















