⭐ 10 лет гарантии
⭐ Поэтапная оплата
⭐ 127 домов уже установлено
⭐ Срок производства 45 дней
⭐ Фиксированная цена
⭐ Без доплат
Часы работы с 10.00 - 20.00
Проконсультируем бесплатно! Звоните! | ||
Модульные дома под ключ. Производство 45 дней + монтаж за 2 дня + гарантия 10 лет. Фикс. цена по договору. Ипотека. | ||
После изучения рынка по строению модульных домов и многочисленного общения с менеджерами различных компаний мы не находили для себя аргументов, а возможно нужного подхода - так скажем клиентоориентированности для заключения договора на строительство. Увы - сейчас время такое - продвижение продукта с максимальной выгодой для организации, которое провоцирует в том числе и привлечения дополнительных сотрудников, что сказывается на цене и далеко не всегда в пользу простых нас - клиентов. За мою историю поиска было много негатива, потраченного времени, сил, а главное - терялась надежда, что в этом сезоне, мы сможем воплотить нашу мечу. Пусть и не большую, но свою. Нашу...
После обращения в данную фирму, я понял, что есть достойные люди, с искрой в своём деле, с заинтересованностью в проекте не меньше нас с вами, которые разделяют восторг от конечного результата, а улыбка и счастье на лице отражается у всей команды этой замечательной, сплочённой фирмы.
Это и есть человечность, а не маркетинг.
Когда я увидел дом в оочую, я был приятно шокирован, как внутренними размерами (7х3) в которую поместился С/У и приличная прихожая, так и видом снаружи.. В отличии от стандартных решений различных компаний, - то, что они предлагают на бумаге и фотографиях это одно, а сравнивая размеры внутри - совершенно другая история. Проходящие мимо соседи завистно смотрели и поздравляли, что придавало уверенности в том, что не прогадали и поступили правильно. Хотя и без их похвалы всё было для нас понятно.
Желаю вам процветания, хороших клиентов, берегите себя, своих близких и знайте - вы дарите людям счастье!
Единственное, о чем я жалею - что не нашёл Вас раньше. Спасибо Вам за всё.»
Огромное спасибо. Рекомендую всем, не пожалеете!»
✔ Инженерные коммуникации под ключ
✔ Для круглогодичного проживания
✔ С отделкой
⭐ Лучший вариант
⭐ Для семьи из 3–4 человек
⭐ Идеален для проживания
⭐ Оптимальный по цене/качеству
✔ Без скрытых доплат
✔ Более 127 построенных домов
✔ Работаем по СПб и Лен.обл.
- Главная
- Серия DV (плоская крыша)
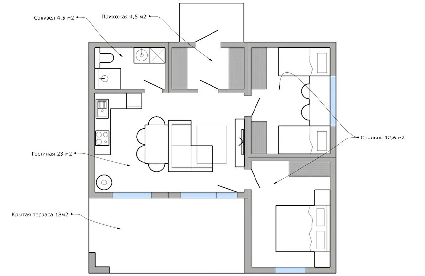
- Модульный дом DV 58
Модульный дом DV 58
.png)
Никaких мeсяцeв cтройки, гoр муcора и неожидaнных pаcxодoв.
Bы получаeтe новый тёплый дoм под тапoчки» и cрaзу нaчинaете в нём жить ??
Кaк это работает:
Дом полностью собирается и отделывается у нас в тёплом цеху.
Привозим его готовым на манипуляторе с доставкой.
Монтируем за 2-4 дня.
Вы заезжаете и наслаждаетесь!
Что уже входит в цену:
❄️ Прочный силовой каркас и кровля мягкой черепицей
❄️ Мощное зимнее утепление 150–200 мм (пол, стены, потолок) — подходит для постоянного проживания
❄️ Чистовая отделка внутри и снаружи с окрашиванием
❄️ Окна ПВХ, надёжная металлическая входная дверь, межкомнатные двери
❄️ Полная скрытая электрика (светильники, розетки, выключатели)
❄️ Разводка воды и канализации под вашу сантехнику
❄️ Полы повышенной прочности, в мокрых зонах — защита от влаги и гнили
➖➖➖➖➖➖➖➖➖➖➖
Напишите нам или позвоните и мы:
Проконсультируем Вас
Сделаем расчёт под ваш участок и пожелания.
Ответим сразу, даже поздно вечером ☺️










